WaterMaze In-Ground Wash Pad

  • On Sale From!
  • Starting At: $0.00

x

Product Quote Requested

WaterMaze In-Ground Wash Pad

Preferred method of contact


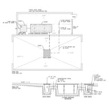
Permanent in-ground wash pad design will make or break any wash water treatment system.  The most successful water treatment systems will always have a well designed wash pad suited to their application. Careful consideration of solids loading, water volume, and system use are critical. A poor wash pad design will result in high solids and oil passthrough, excessive buildup or clogging, poor water treatment, and strong repulsive odors. Cougar Chemical with the backing of Water Maze Applications Engineers are prepared to offer recommendations on proper wash pad design and maintenance for every application.

The primary purpose of an in-ground pit system is to retain heavy settleable solids and debris that will impact the sump pump.  

Excessive amounts of water volumes in the pit system will create an anaerobic microbial
environment (e.g. stagnant water) that will contribute to malodorous conditions in the wash area.

Get in Touch with us HERE.


Sale

Unavailable

Sold Out